Parkzicht 2 Poperinge
8 lichtrijke appartementen in de Veurnestraat
Welkom
Beste,
met trots stelt Soldium Construct “Residentie Parkzicht 2” aan u voor, een stijlvol woonproject gelegen in de Veurnestaat 37 te Poperinge, de stad van het goede leven.
Dat is precies ook wat Residentie Parkzicht 2 beoogt; een sympathiek, kwalitatief project in het Centrum van Poperinge, op een boogscheut van de Grote Markt en met zicht op het achterliggende stadspark. Zo kent het dankzij het omliggend verkeersnet ook een ideale ontsluiting in diverse richtingen.
Die bijzondere troeven prikkelden de bouwheer om hier een weldoordacht nieuwbouwproject bestaande uit 8 lichtrijke appartementen op te trekken, met bijzondere aandacht voor comfort.
In Residentie Parkzicht 2 speelt de architectuur met mature en tegelijk sobere kleuren gecombineerd met duurzame materialen waardoor er een tijdloze uitstraling wordt gecreëerd.
Ontdek alles over Residentie Parkzicht 2 op de volgende pagina’s van deze brochure en geniet van de rijke mogelijkheden die ons project te bieden heeft.
Uw ervaring ? We horen het graag !
Inplanting
en architectuur
Het project bestaat uit 2 appartementen op het gelijkvloers, 2 op het eerste verdiep, 2 op de 2de verdieping en 2 op de 3de verdieping. Via de fietslift bereik je bovendien de speciaal voorziene fietskelder, een afvallokaal en het tellerlokaal.
Elk appartement heeft zijn eigen karakter met een bewoonbare oppervlakte van 78 tot 120 m². Ze beschikken allemaal over 2 of 3 slaapkamers en er kan voor elke woongelegenheid een staanplaats worden gereserveerd op de site. De site wordt achteraan afgescheiden van het openbaar domein door een onderhoudsvriendelijke groenzone. Eén van de vele troeven van het project is de uitgekiende prijskwaliteitsverhouding, met verkooprijzen vanaf € 235.500 (excl. kosten) !
De architectuur is strak en tegelijk tijdloos, dankzij een combinatie van wit-beige genuanceerd metselwerk en bruin getinte dakpannen. De manier van metselen geeft een karaktervol en modern uitzicht dat zeer goed opgaat in de omgeving. Daarnaast wordt er gekozen voor hoogwaardige materialen. De appartementen zijn ruim en leefbaar door hun oppervlakte en hun lichtinval, wat resulteert in een rustgevende woonervaring. Er is aandacht voor het comfort van de terrassen zodat elke toekomstige eigenaar beschikt over een private buitenruimte die rechtstreeks grenst aan hun appartement en bovendien rolstoeltoegankelijk is.
Bij het ontwerp van de appartementen staan kwaliteit en comfort voorop. Er wordt veel aandacht besteed aan de praktische indeling, bergruimte en privacy. Door elk appartement te voorzien van voldoende glaspartijen kan men in elk appartement genieten van veel lichtinval, wat de kwaliteit van het wooncomfort verhoogt. Daarnaast wordt er bijzondere aandacht besteed aan zowel thermische als akoestische isolatie.
Deze energiezuinige appartementen vormen meteen een meerwaarde in het kwalitatieve nieuwbouwsegment in de regio.
Ligging
Veurnestraat 37, Poperinge
Poperinge
Leven als God naast Frankrijk
Het Burggraaf Frimoutpark
Het stadspark, genoemd naar Burggraaf Dirk Frimout (eerste Belg in de ruimte), vormt de groene long in het centrum van Poperinge. Ontdek in het 3 hectare grote park de drie verschillende zones: een demonstratiezone met verschillende tuintjes, een ecologische zone en een recreatieve zone. Je kan er een mooie wandeling maken, genieten van de prachtige waterpartijen en de variatie van planten en vogels. Een echte oase van rust.
Hou met de kinderen zeker even halt bij het speelplein in het begin van het park. Kinderen van peuter tot tiener beleven er plezier. In de lente-en zomermaanden is het park het decor van vele optredens en openluchtevenementen.
Tal van evenementen
Het toeristisch seizoen in Poperinge start traditioneel wanneer de hopscheuten geoogst en geproefd worden. In de zomer trekt het kunstenfestival van Watou bezoekers uit heel het land. Het jaarlijkse kunstenparcours combineert poëzie met beeldende kunsten in een unieke omgeving. Poperinge pakt ook uit met zijn internationale Keikoppencarnavalstoet, 1 mei-rommelmarkt, de Vierdaagse van de Ijzer, het weekend van het volkscafé, …
Poperinge is ook de hoofdstad van het Goede Leven. Om de 3 jaar staat de stad helemaal in het teken van de Bier- en Hoppefeesten. Met de wervelende Hoppestoet, een bruisende Hopkoninginverkiezing en natuurlijk de lekkerste biermarkt van de regio.
Het hele jaar door
Fietsers voelen zich helemaal thuis in Poperinge. Wat dacht je van een bierfietsroute of de Schreveroute langs de Belgisch- Franse grens. Ons goed uitgebouwd en veilig fietsnetwerk met knooppunten, maakt het rondtoeren hier nog plezanter.
Trek je wandelschoenen aan en kies één van de vele wandelroutes of stippel zelf uw route uit langs de hoppevelden, het oorlogsverleden,… en geniet van de waanzinnig mooie natuur. Kort samengevat, het is aangenaam vertoeven in Poperinge, er is voor elk wat wils!
Een goed
geïnformeerde keuze
Kristalheldere informatie en documenten
Solidum Construct kiest resoluut voor duurzaamheid, transparantie, kwaliteit en correcte informatie in hun mission statement rond projectontwikkeling. Onderdeel daarvan is het commercieel lastenboek dat elke koper duidelijkheid en overzicht moet bieden in de afwerking van zijn/haar toekomstig pand. Het veronderstelt een vlot/leesbaar geschreven document te zijn dat een duidelijke weergave biedt van de bouwmethodes, handelswaardes en afwerkingsgraad. De keuze voor duurzame materialen en bouwtechnieken die voldoen aan hoge kwaliteitsnormen is onderdeel van dat engagement, zonder daarbij evenwel de verwerkingsmethodes per leverancier in detail te beschrijven. Dat is de verantwoordelijkheid en tegelijk aansprakelijkheid van elk lid van het bouwteam. Bijkomende informatie is op aanvraag steeds beschikbaar bij het verkoopkantoor of de projectontwikkelaar. De woningen/appartementen worden opgericht conform de afgeleverde bouwvergunningen. De verwerkingsmethodes of materialen kunnen op initiatief van de architect, bouwcoördinator en bouwheer gewijzigd worden in functie van het eindresultaat van de werken, zonder evenwel in te boeten op de vooropgestelde kwaliteit. Voor het gedetailleerd latenboek verwijzen we naar de aparte bijlage. Onze verkoopovereenkomsten worden ondubbelzinnig en transparant opgesteld zonder ruimte voor onaangename verrassingen. Kortom, op basis van duidelijke inzichten kan u met een gerust hart uw aankoopbeslissing nemen.
Aankoopadvies
De aankoop van onroerend goed is een complex gegeven geworden. Heel wat juridische/ praktische vragen en overwegingen stellen zich. Welke stappen dien ik te ondernemen om veilig aan te kopen? Wat zijn de wettelijke voorschriften? Hoe en wanneer gebeurt de betaling? Naast uw eigen vertrouwenspersoon en uw notaris kan u hiervoor op ons rekenen. Door onze doorgedreven kennis van het bouwproces, onze klantgeoriënteerde aanpak en juridische ondersteuning kan u zorgeloos een beroep op ons doen bij het overwegen van de verschillende mogelijkheden. En is het al eens iets complexer dan laten wij ons graag bijstaan door bijkomende experten. We nemen de tijd, helpen u verder op weg en gaan uitsluitend voor tevreden klanten.“De basis van elke succesvolle samenwerking is het opmaken en verstrekken van correcte, transparante en eerlijke informatie.”
Aankoop op plan
(100% voltooiingswaarborg)
De aankoop op plan biedt de mogelijkheid aan te open voor of tijdens het bouwproces. Voor velen is dit een niet-alledaags gebeuren. Dankzij een duidelijke aanpak, heldere documenten, planbesprekingen met uw persoonlijke klantenbegeleider en periodieke werfbezoeken is het perfect mogelijk uw droomwoning/-appartement te realiseren. Dit heeft voor u als koper heel wat voordelen:
- U heeft de eerste keuzemogelijkheid in de verschillende types woningen/appartementen
- We leveren een 100% voltooiingswaarborg af. Dat biedt u garanties op de volledige afwerking zoals vooropgesteld.
- Het personaliseren van uw woning/appartement is nog mogelijk. Denk hierbij bv. aan vloerbedekking, keuken, deuren, badkamer,… Na aankoop wordt uw individuele klantenbegeleider uw aanspreekpunt voor de planbesprekingen en werfopvolging. Kortom, maatwerk.
- Tijdens de planfase is er mogelijkheid tot het aanpassen van niet-dragende structuren in uw woning/appartement, zolang technisch (stabiliteit) conform en geen conflicten mogelijk voor een comfortabele uitvoering en installatie van alle nutsvoorzieningen.
- Conform de wetgeving betaalt u nooit op voorhand (voorschotfacturen meerwerken uitgezonderd) en enkel voor werken die reeds zijn uitgevoerd en werden geattesteerd door de architect.
“Onze projecten worden gerealiseerd door een team van competente mensen, elk specialisten in hun vak”
Aankoopproces
De aankoop van een woning/ appartement als gezinswoning, investering of tweede verblijf is een belangrijke beslissing. Net daarom is het aangewezen te kopen bij een bedrijf dat u alle zekerheden en garanties kan bieden. Vertrouwen is cruciaal in dit proces. Je kan hiervoor rekenen op de jarenlange ervaring van de ontwikkelaars en het projectteam. De aankoop van een woning/appartement is een stappenplan van de verkoopovereenkomst tot de authentieke akte en van de opstart van het bouwproces tot de oplevering.
De verkoopovereenkomst
Het model van de verkoopovereenkomst (de compromis) wordt opgemaakt door de notaris rekening houdend met de specifieke eigenschappen van het project en 100 % conform de Wet Breyne. Deze overeenkomst wordt ondertekend door koper en promotor. Ze beschrijft op een duidelijke manier de woning/het appartement en vermeld de onderverdeling in grondwaarde en constructiewaarde. Op de grondwaarde zullen 12 % verkooprechten worden geheven en op de constructiewaarde 6 of 21 % BTW. Na de ondertekening van de verkoopovereenkomst wordt een voorschot betaald van 5% op de verkoopprijs door overschrijving binnen de 7 dagen.
De authentieke acte
De notariële akte wordt op voorstel van de notaris binnen de 3 maanden na ondertekening van de verkoopovereenkomst verleden. U heeft uiteraard de mogelijkheid om u te laten bijstaan door uw eigen notaris zonder bijkomende kosten.
Bij de akte betaalt u het saldo van de grondwaarde (grondwaarde – voorschot) vermeerderd met de verkooprechten (12%), de aktekosten, het forfait van de aansluitingskosten nutsvoorzieningen en de reeds uitgevoerde werken aan de woning of meergezinswoning volgens het schema vermeld op de verkoopovereenkomst vermeerderd met de BTW (6/21%).
HET BOUWPROCES
Tijdens het bouwproces wordt u bijgestaan door een individuele klantenbegeleider. Hij/zij is uw eerste aanspreekpunt en staat in voor de begeleiding bij het personaliseren en afwerken van uw woning /appartement.
U ontvangt alle informatie betreffende het verloop van de bouw, de te bezoeken toonzalen van onze bouwpartners en de belangrijke sleuteldata. Hij/zij organiseert de planbesprekingen en werfbezoeken met u op afspraak. Kortom van start tot oplevering een adviseur met kennis van zaken die uw vragen beantwoordt.
In het verkooplastenboek staan het bouwproces, de klantenbegeleiding en de algemene en bijzondere voorwaarden beschreven. De facturen van de uitgevoerde werken, volgens het schema vermeld in de verkoopovereenkomst en akte, worden toegestuurd per post en/of email en zijn betaalbaar binnen de 14 dagen. Deze worden vergezeld van een attest van de architect die bevestigt dat de werken conform zijn uitgevoerd.
De oplevering
Na voltooiing van de werken wordt een rondgang georganiseerd in de woning/het appartement. Hiervan worden een schriftelijk verslag en een proces-verbaal opgemaakt. Bij een volledige afwerking en na betaling van de laatste schijf wordt overgegaan tot de sleuteloverhandiging ! Welkom in uw nieuwe stek !
"Zeggen wat je doet en doen wat je zegt is fundamenteel.”
Verkoopplannen

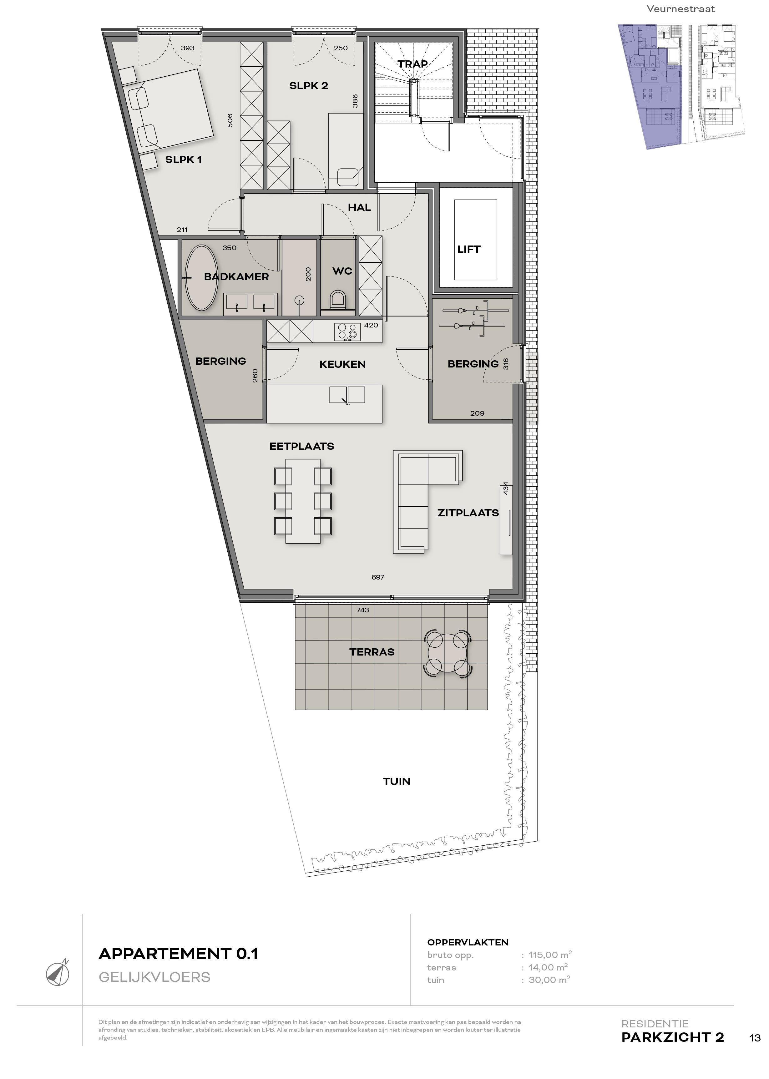
Appartement 0 1

Appartement 1 1

Appartement 1 2

Appartement 1

Appartement 2 1

Appartement 2 2

Appartement 3 1

Appartement 3 2
De 8 appartementen in Poperinge zijn een realisatie van
























